
发布时间:2021-06-22 14:49
>项目背景
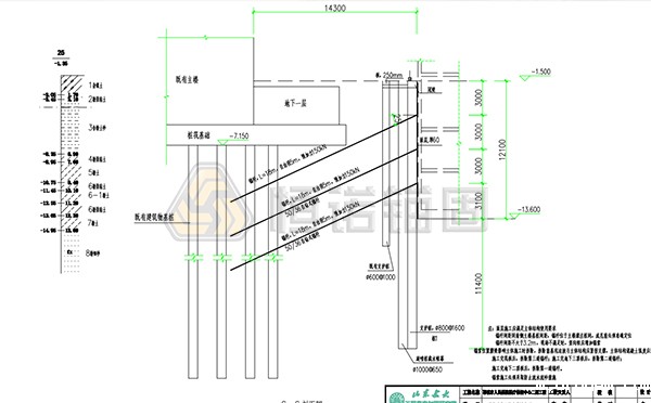
山东重点项目1.43亿元聊城市人民医院医疗保健中心二期项目,项目为总建筑面积为89,481平方米的医疗发展,包含:一幢13层高的病房楼。采用R51自钻式螺旋翼板中空锚固系统做预应力锚杆,钻进深度18-22m。

>项目概览
1.项目工期:2020年9月—2021年3月
2.服务范围:锚固材料、现场技术服务
3.应用场景:建筑基坑支护
4.应用结构:自钻式中空锚杆用作预应力锚杆
5.项目用量:近10000m
6.地质条件:拟建物场地内地基土在勘探深度内为第四系黄河冲积物和人工填土,基坑挖深范围土层为:杂填土、粉质粘土、含粉土砂、粉质粘土、粉土、粉质粘土、粉土、粉细砂。
>问题与挑战
基坑开挖基底标高为-13.6m,采用排桩支护,双排桩或三排桩,有效桩长21.5m,桩顶设置冠梁,排桩顶沿基坑周边设置钢筋混凝土板,设置1-3道R51自钻式锚杆,锚杆长度15-22m,基坑坡面施工挂网喷射混凝土面层,挂单层钢筋网。锚杆入射角为25°,穿过搅拌桩截水帷幕和既有支护桩进入既有建筑物基桩之间。

>解决方案
锚杆体端部安装螺旋叶片,采用旋转钻进方法,同步钻进和注浆一次钻进即可实现成孔、注浆和锚固,Ф150mm螺旋叶片扩大钻孔直径。注浆液采用水泥浆,一、二次注浆水灰比均为0.5-0.55。锚段强度大于15MPa且不小于设计强度的75%时,施加预应力,大小为设计载荷的0.9-1.0倍。安装腰梁及垫板螺母,最后使用液压千斤顶按设计要求张拉锁定完成。

>施工工艺
物料准备→钻机就位→连接中空锚杆及钻头→同步钻进与注浆→接长锚杆体→重复钻进及注浆→钻孔完成→安装腰梁锚头→张拉锁定→下一层锚杆安装→安装完成
>施工设备
钻机:履带式液压回转钻机
施工效率:每米纯钻进平均用时0.77min


>项目测试
无

邮箱:hengnuo@lyhengnuo.com
地址:洛阳市洛龙区洛龙科技园区张衡街
官方微信:ag九游会百家乐
微信号:hengnuomaogu
COPYRIGHT © @2002-2024 版权所有 豫ICP备2021016006号-1站点地图
豫公网安备41031102000303